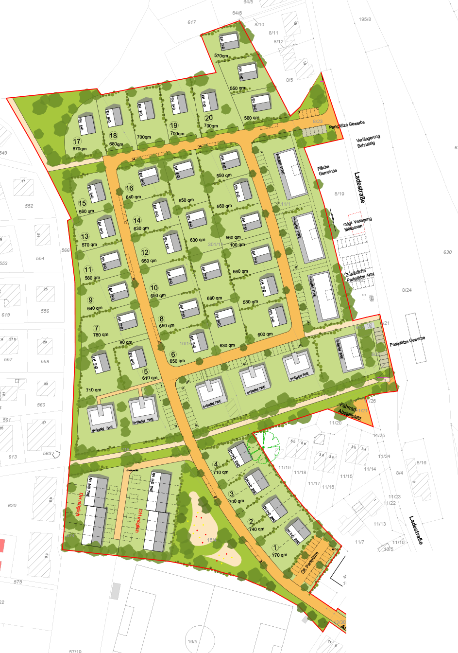
Im Zentrum von Hasloh sind trotz dessen starker Entwicklung Flächen in unmittelbarer Nähe zum Haltepunkt der AKN unbebaut geblieben. Hier soll die „Neue Mitte“ entstehen:
Kirche, Kindergarten, Marktplatz, Freiflächenangebote und Wohnungsbau sind geplant.
In moderierten Workshops wurden die Ziele der städtebaulichen Planung mit den Bürgern gemeinsam erarbeitet.
Die Realisierung wird, unter Berücksichtigung der Vorgaben der Raumordnung, in Teilabschnitten erfolgen.

